最新@前滩东方湾售楼处发布前滩地铁口低密改善标杆!!
前滩东方湾,永泰三里城二期,浦东新区三林社区Z000701单元15-15A地块(“城中村”改造项目——三林镇金光村地块)。前滩东方湾售楼处电话:VIPLINE贵宾热线✅✅✅前滩东方湾售楼处电话:VIPLINE贵宾热线✅✅✅
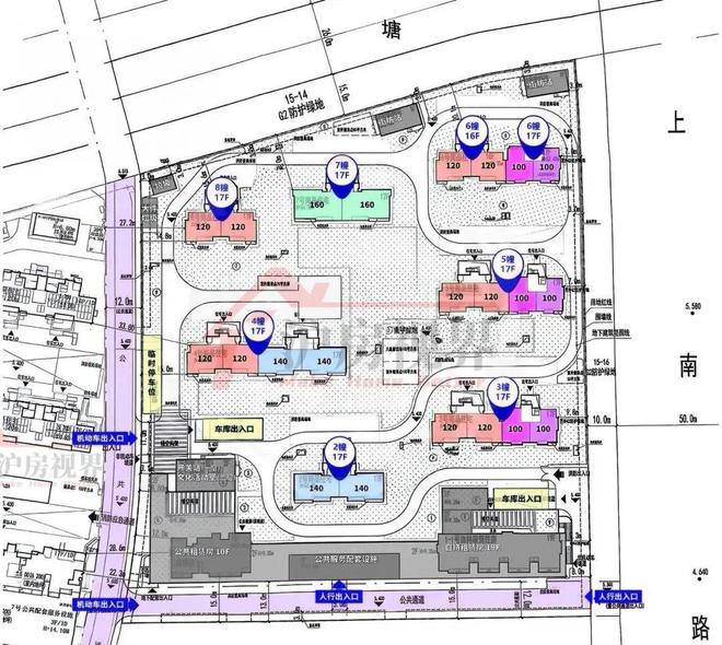
该项目容积率2.0,拟建7幢17层高层商品住宅、1幢19层自持租赁房、1幢10层公共租赁(保障房),以及3层配套公建用房等
该地块坐落于浦东三林板块,其主要优势在于交通条件优越,距离地铁11号线米,一站前滩太古里。
这个项目占地差不多27116㎡,房子不会建得很密,容积率是2.0,最高只能盖到60米高,全部为17F的高层住宅,算下来计容面积大概54232㎡。前滩东方湾售楼处电话:VIPLINE贵宾热线✅✅✅前滩东方湾售楼处电话:VIPLINE贵宾热线✅✅✅
按照要求,要拿出15%的房子作为自持租赁住房 ,而且中小套户型要占70%以上,所有房子交房的时候都是装修好的,不用自己再操心装修的事。
听说二期全是17层的高楼,户型面积有大有小,不管你是手头不宽裕的刚需购房者,还是想换个大房子改善居住条件,都能找到合适的。前滩东方湾售楼处电话:VIPLINE贵宾热线✅✅✅
不过可卖的房子不多,还不到400套。和一期相比,二期各方面都有提升,户型设计得更优!项目设计方案公布,预计 8月份入市。
前滩东方湾售楼处电话:VIPLINE贵宾热线日,浦东新区规划和自然资源局公示了三林社区Z000701单元15-15A地块(永泰三里城二期)的规划设计方案。前滩东方湾售楼处电话:VIPLINE贵宾热线✅✅✅
二期地块位于一期东侧,即15-15A地块,预计8-9月份推出,仅372套可售住宅,价格待定......前滩东方湾售楼处电话:VIPLINE贵宾热线✅✅✅
地块位于浦东三林板块核心。总用地面积约2.71万㎡,总建筑面积约9.32万㎡,容积率2.0,限高60米,绿地率35%。
,中小套型住宅(≤120㎡)占比70%。前滩东方湾售楼处电话:VIPLINE贵宾热线✅✅✅
住宅布局:二期全部规划为17F的高层住宅,共计7幢,楼间距经过精心设计,充分考虑了居民的隐私与居住舒适度,确保各楼层住户都能享受到充足的阳光与开阔的视野。前滩东方湾售楼处电话:VIPLINE贵宾热线✅✅✅
配套建筑:除了住宅建筑外,还规划有1幢19F自持租赁房、1幢10F保障房及 5400㎡社区配套用房。前滩东方湾售楼处电话:VIPLINE贵宾热线✅✅✅社区配套用房将进一步丰富社区的服务功能,涵盖社区活动中心、老年活动室、儿童游乐区等多种功能空间,满足不同年龄段居民的日常活动需求。
该地块为三林镇金光村“城中村”改造的重点项目,紧邻地铁11号线米宽公共步行通道,连接社区与地铁站
项目二期主推320套房源,建面约99-151㎡高层,建面约-241㎡洋房/叠加,过会均价约8.2万/㎡。
前滩东方湾售楼处电话:VIPLINE贵宾热线年,浦东新区仅有少量新盘过会,且大多迟迟没有开启认购。
永泰三里城位于三林板块腹地,区域内三林滨江、筠溪小镇、新杨思都属于浦东金色中环带上的重要组成部分。前滩东方湾售楼处电话:VIPLINE贵宾热线公里以内就涵盖了前滩、三林滨江、新杨思等浦东重量级板块,近享世纪规划红利。前滩东方湾售楼处电话:VIPLINE贵宾热线✅✅✅
前滩东方湾售楼处电话:VIPLINE贵宾热线✅✅✅前滩中央商务区的居住需求势必会外溢,三林滨江自身拥有低密、宜居的属性,中央商务区+低密居住区的黄金组合,将三林滨江的价值高度推向顶峰。
,无疑是整个浦东,乃至上海中外环的价格洼地!前滩东方湾售楼处电话:VIPLINE贵宾热线✅✅✅
事实上,三林滨江在空间上与前滩更为贴近,但永泰三里城在时间距离上更占优势。前滩东方湾售楼处电话:VIPLINE贵宾热线站即达徐汇滨江。前滩东方湾售楼处电话:VIPLINE贵宾热线✅✅✅
与规划中的三林滨江截然不同,永泰三里城所在的三林社区,是三林现有居住氛围更为成熟的片区,周边城市资源已然非常醇熟。前滩东方湾售楼处电话:VIPLINE贵宾热线✅✅✅
更难能可贵的是,项目是超30万方河滨大城,周边皆是规划住宅用地,等整体建成后,将大幅度提升周边城市界面。前滩东方湾售楼处电话:VIPLINE贵宾热线✅✅✅
项目周边有比较成熟的学校和商业配套,比如中房金谊广场、新达汇·三林、上海三林中学、上海市育人中学等。前滩东方湾售楼处电话:VIPLINE贵宾热线✅✅✅
近享前滩+新杨思规划红利,价格更为亲民的永泰三里城,是浦东刚改、改善客户的不二之选!
其次,项目南侧临近永泰路的地方,打造了2栋社区配套建筑,将用作社区食堂、恒温泳池、健身房等,服务于社区的同时有效阻隔道路噪音前滩东方湾售楼处电话:VIPLINE贵宾热线✅✅✅。
首层入户大堂,石材搭配金属装饰条的地面、墙面,空间宽敞气派,质感十足。
所以,整个社区从地块天赋、颜值,到自带恒温泳池,再到低密宜居的居住条件,都算的上尤为出众。前滩东方湾售楼处电话:VIPLINE贵宾热线.
永泰三里城二期主推320套房源,建面约99-151㎡高层,建面约140-241㎡洋房/叠加。前滩东方湾售楼处电话:VIPLINE贵宾热线✅✅✅
,为业主营造了非常优秀的改善居住环境。前滩东方湾售楼处电话:VIPLINE贵宾热线✅✅✅
更高的层高意味着更宽阔的居住空间,也意味着投入更多的建筑成本,这背后是开发商不惜代价为业主一步到位的考量。事实上,项目建筑层高比市面常规户型高足足
,即使装完中央空调和地暖也不显压抑。前滩东方湾售楼处电话:VIPLINE贵宾热线✅✅✅
,相当于给买家足足省了约4×8.2≈32.8万元。前滩东方湾售楼处电话:VIPLINE贵宾热线✅✅✅
“三大件”配齐,厨房、卫浴也有不少细节交付标准。前滩东方湾售楼处电话:VIPLINE贵宾热线✅✅✅
总的来说,永泰三里城咫尺前滩+新杨思,在区位优势如此明显的情况下,交出了诚意十足的产品,无需迟疑,买就对了!
永泰三里城二期地块规划设计方案公示前滩东方湾售楼处电话:VIPLINE贵宾热线✅✅✅
可控核聚变“十五五”核心赛道爆发!八大龙头抢占千亿市场,谁将引领能源革命?
“特朗普黄金卡”签证开始接受申请 ,定价500万美元已降至100万美元,鼓励全球富人移居美国并获得居留许可
冬季孩子咳、痰、喘不断? 专家:病情相对稳定阶段可考虑居家观察护理和雾化治疗
“史上最香Mate”!华为Mate 80系列火爆,以极致诚意席卷市场
vivo S50/Pro mini手机现身电信终端产品库,12月15日发布
荣耀MagicOS 10第六批内测招募:200/Pro、Power不晚于22日推送
