前滩东方湾售楼处首页-前滩东方湾售楼处电话-开盘时间-房价-户型-楼盘详情-周边环境-户型-价格-地址-楼盘详情-电话
您当前使用的浏览器版本过低,可能存在安全风险,建议升级浏览器,或者用以下浏览器浏览
您也可以直接使用焦点APP或微信小程序浏览
前滩东方湾官方售楼处首页-前滩东方湾售楼处电话-前滩东方湾开盘时间-房价-户型-楼盘详情-周边环境-户型-价格-地址-楼盘详情-售楼处电话
前滩东方湾官方售楼处首页-前滩东方湾售楼处电话-前滩东方湾开盘时间-房价-户型-楼盘详情-周边环境-户型-价格-地址-楼盘详情-售楼处电话
前滩东方湾二期售楼处电话:(售楼处官方认证) 浦东三林前滩东方湾二期营销中心热线(售楼处预约看房热线)前滩东方湾二期售楼处电话,位于浦东三林,交通便利,容积率2.0,提供自持租赁住房。
看房请务必致电与销售确认时间,仅预约客户可享受开发商内部优惠,专属老带新推荐奖!
浦东三林前滩东方湾二期营销中心热线(售楼处预约看房热线)永泰三里城二期,浦东新区三林社区Z000701单元15-15A地块(“城中村”改造项目——三林镇金光村地块)。
浦东三林前滩东方湾二期营销中心热线(售楼处预约看房热线)该地块坐落于浦东三林板块,其主要优势在于交通条件优越,距离地铁11号线米,一站前滩太古里。
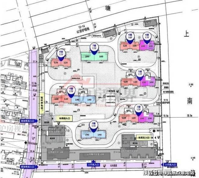
浦东三林前滩东方湾二期营销中心热线(售楼处预约看房热线㎡,房子不会建得很密,容积率是2.0,最高只能盖到60米高,全部为17F的高层住宅,算下来计容面积大概54232㎡。
浦东三林前滩东方湾二期营销中心热线(售楼处预约看房热线%的房子作为自持租赁住房,而且中小套户型要占70%以上,所有房子交房的时候都是装修好的,不用自己再操心装修的事。
浦东三林前滩东方湾二期营销中心热线(售楼处预约看房热线层的高楼,户型面积有大有小,不管你是手头不宽裕的刚需购房者,还是想换个大房子改善居住条件,都能找到合适的。
浦东三林前滩东方湾二期营销中心热线(售楼处预约看房热线)不过可卖的房子不多,还不到400套。和一期相比,二期各方面都有提升,户型设计得更优!
浦东三林前滩东方湾二期营销中心热线(售楼处预约看房热线)永泰三里城二期地块规划设计方案公示
浦东三林前滩东方湾二期营销中心热线(售楼处预约看房热线日,浦东新区规划和自然资源局公示了三林社区Z000701单元15-15A地块(永泰三里城二期)的规划设计方案。
浦东三林前滩东方湾二期营销中心热线(售楼处预约看房热线)二期地块位于一期东侧,即15-15A地块,预计8-9月份推出,仅372套可售住宅,价格待定......
浦东三林前滩东方湾二期营销中心热线(售楼处预约看房热线)地块位于浦东三林板块核心。总用地面积约2.71万㎡,总建筑面积约9.32万㎡,容积率2.0,限高60米,绿地率35%。
浦东三林前滩东方湾二期营销中心热线(售楼处预约看房热线㎡社区配套用房,中小套型住宅(≤120㎡)占比70%。
浦东三林前滩东方湾二期营销中心热线(售楼处预约看房热线)住宅布局:二期全部规划为17F的高层住宅,共计7幢,楼间距经过精心设计,充分考虑了居民的隐私与居住舒适度,确保各楼层住户都能享受到充足的阳光与开阔的视野。
浦东三林前滩东方湾二期营销中心热线(售楼处预约看房热线)除了住宅建筑外,还规划有1幢19F自持租赁房、1幢10F保障房及5400㎡社区配套用房。社区配套用房将进一步丰富社区的服务功能,涵盖社区活动中心、老年活动室、儿童游乐区等多种功能空间,满足不同年龄段居民的日常活动需求。
浦东三林前滩东方湾二期营销中心热线(售楼处预约看房热线号线米左右,一站前滩太古里,交通便捷
该地块为三林镇金光村“城中村前滩东方湾二期售楼处电话:(售楼处官方认证)
浦东三林前滩东方湾二期营销中心热线(售楼处预约看房热线)”改造的重点项目,紧邻地铁11号线米宽公共步行通道,连接社区与地铁站;同时周边有中房金谊广场、三林中学、东方医院等生活配套。
浦东三林前滩东方湾二期营销中心热线(售楼处预约看房热线)重磅消息,一站直达前滩、中外环轨交红盘永泰三里城1期五批次已过会,2024.6.7入市啦!6.21已开盘目前少量房源直接认购中.
浦东三林前滩东方湾二期营销中心热线(售楼处预约看房热线㎡洋房/叠加,过会均价约8.2万/㎡。
浦东三林前滩东方湾二期营销中心热线(售楼处预约看房热线)浦东三林前滩东方湾二期营销中心热线(售楼处预约看房热线万之间,当下热门板块无外乎唐镇、高行等板块,中外环仅能选择更为偏远的御桥、外高桥等区域。
浦东三林前滩东方湾二期营销中心热线(售楼处预约看房热线)浦东三林前滩东方湾二期营销中心热线(售楼处预约看房热线)永泰三里城位于三林板块腹地,区域内三林滨江、筠溪小镇、新杨思都属于浦东金色中环带上的重要组成部分。
项目3公里以内就涵盖了前滩、三林滨江、新杨思等浦东重量级板块,近享世纪规划红利。
浦东三林前滩东方湾二期营销中心热线(售楼处预约看房热线)前滩中央商务区的居住需求势必会外溢,三林滨江自身拥有低密、宜居的属性,中央商务区+低密居住区的黄金组合,将三林滨江的价值高度推向顶峰。
浦东三林前滩东方湾二期营销中心热线(售楼处预约看房热线)三林滨江的热度有目共睹,住宅价格在10万/㎡+,别墅价格高达13.38万/㎡,且板块价值已深入人心。
浦东三林前滩东方湾二期营销中心热线(售楼处预约看房热线)永泰三里城高层前期均价仅约7.8万/㎡,洋房&叠加约8.6万/㎡,无疑是整个浦东,乃至上海中外环的价格洼地!
浦东三林前滩东方湾二期营销中心热线(售楼处预约看房热线)事实上,三林滨江在空间上与前滩更为贴近,但永泰三里城在时间距离上更占优势。
浦东三林前滩东方湾二期营销中心热线(售楼处预约看房热线)不仅如此,项目周边拥有中环、南北高架、外环、杨高南路等主干道,自驾前往浦西市区、陆家嘴、张江等都非常便利。
浦东三林前滩东方湾二期营销中心热线(售楼处预约看房热线)与规划中的三林滨江截然不同,永泰三里城所在的三林社区,是三林现有居住氛围更为成熟的片区,周边城市资源已然非常醇熟。
浦东三林前滩东方湾二期营销中心热线(售楼处预约看房热线)更难能可贵的是,项目是超30万方河滨大城,周边皆是规划住宅用地,等整体建成后,将大幅度提升周边城市界面。
浦东三林前滩东方湾二期营销中心热线(售楼处预约看房热线)项目周边有比较成熟的学校和商业配套,比如中房金谊广场、新达汇·三林、上海三林中学、上海市育人中学等。
浦东三林前滩东方湾二期营销中心热线(售楼处预约看房热线)这里有前滩太古里、前滩31、浦发银行东方体育中心、前滩休闲公园、前滩体育公园、前滩友城公园等。
浦东三林前滩东方湾二期营销中心热线(售楼处预约看房热线)近享前滩+新杨思规划红利,价格更为亲民的永泰三里城,是浦东刚改、改善客户的不二之选!
浦东三林前滩东方湾二期营销中心热线(售楼处预约看房热线,是上海中外环相当臻稀的双面滨河、低密社区,规划有16-19层高层,6层电梯洋房。
浦东三林前滩东方湾二期营销中心热线(售楼处预约看房热线)住进永泰三里城社区中,能以更低的生活成本,享受到更高的居住舒适度。首先社区天赋方面,项目双面环水,北侧、东侧皆是天然河道,整体的居住环境静谧。
浦东三林前滩东方湾二期营销中心热线(售楼处预约看房热线)其次,项目南侧临近永泰路的地方,打造了2栋社区配套建筑,将用作社区食堂、恒温泳池、健身房等,服务于社区的同时有效阻隔道路噪音。
浦东三林前滩东方湾二期营销中心热线(售楼处预约看房热线)仁恒的物业服务水准业内外的认可度都非常高,荣膺中国金钥匙6S管理创新奖、中国物业管理综合实力百强等诸多殊荣。
浦东三林前滩东方湾二期营销中心热线(售楼处预约看房热线)所以,整个社区从地块天赋、颜值,到自带恒温泳池,再到低密宜居的居住条件,都算的上尤为出众。
浦东三林前滩东方湾二期营销中心热线(售楼处预约看房热线)整个社区并没有小户型,整体的圈层高度统一,为业主营造了非常优秀的改善居住环境。
浦东三林前滩东方湾二期营销中心热线(售楼处预约看房热线)更高的层高意味着更宽阔的居住空间,也意味着投入更多的建筑成本,这背后是开发商不惜代价为业主一步到位的考量。
浦东三林前滩东方湾二期营销中心热线(售楼处预约看房热线)事实上,项目建筑层高比市面常规户型高足足约10-20公分,即使装完中央空调和地暖也不显压抑。
浦东三林前滩东方湾二期营销中心热线(售楼处预约看房热线)一般来讲都是建筑面积约8㎡,如果不封阳台,那面积只算一半,相当于给买家足足省了约4×8.2≈32.8万元。
浦东三林前滩东方湾二期营销中心热线(售楼处预约看房热线)项目国家绿建三星标准+超低能耗建筑,是国内绿色建筑高标准,健康主导之上,起到降噪、少尘等的防护效果,细节考究品质有保障!
项目装修标准也是诚意满满,中央空调、地暖、新风系统“三大件”配齐,厨房、卫浴也有不少细节交付标准。
浦东三林前滩东方湾二期营销中心热线(售楼处预约看房热线)总的来说,永泰三里城咫尺前滩+新杨思,在区位优势如此明显的情况下,交出了诚意十足的产品,无需迟疑,买就对了!
看房请务必致电与销售确认时间,仅预约客户可享受开发商内部优惠,专属老带新推荐奖!
浦东三林前滩东方湾二期营销中心热线(售楼处预约看房热线)楼盘项目全面介绍,本电话为开发商提供线上预约售楼电话,楼盘项目全面介绍(包含楼盘简介,均价,房价,现房,期房,别墅,叠墅,大平层,价格,楼盘地址,户型图,交通规划,备案价,备案名,项目配套,样板间,开盘时间,认筹时间,楼盘详情,售楼处电话,最新消息,最新详情,周边配套,一房一价,最新进展等详情咨询)楼盘详情丨价格丨更多优惠丨机不可失丨欢迎致电丨诚邀品鉴!售楼处位置丨特价房丨工抵房丨剩余房源丨户型图丨最新消息丨免责声明:将文章内容综合来源于网络、只作分享,版权归原作者所有!!如有侵权,请联系我们,我们第一时间处理如有问题欢迎来电咨询,专业一对一热情服务,让您用专业眼光去买房。如果您想了解更多楼盘详情,欢迎提前预约拨打永泰三里城售楼处电话
2024最新!苏州高铁新城江南云起江南云起楼盘详解户型配套价格开发商实力
项目采用一线品牌精装交付,贴心设计了7大收纳空间和3大智慧居住场景。象屿地产坚持以住宅开发为核心,商业发展和物业服务为两翼的战略布局,这次选择在苏州高铁新城打造项目,旨在为苏州人创造更美好的居住体验。有独立入
2024最新!吴风宸樾府吴风宸樾府园区东科技豪宅户型地址配套价格图文详解
他们还邀请了北京顺景设计和上海HWCD设计团队参与,这两个团队都是顶级豪宅的设计专家。项目所在的甪端新区是园区重点发展区域,未来将聚集生物医药、智能制造等高端产业。地下车库设计独具匠心,以星空为主题。165平
2025最新!旭辉东吴序旭辉东吴序珍藏级墅居图文详解户型地段配套价格售楼处
旭辉东吴序坐落于吴中宝带西路与龙西路交汇处,这个占地1.6万方、建筑面积2.5万方的项目,以1.5的低容积率打造出仅78席的隐贵圈层。2025年打造的东吴序,是其别墅灯塔力作。项目以移步换景的园林设计理念,打
2026最新!苏州奥体芯绿城沁百合绿城沁百合低密洋房户型配套价格售楼处地址
在这样的政策东风下,位于苏州奥体芯的,正以纯粹的姿态静候知音。2024年绿城在苏州的东园西庐项目更是传奇之作。位于奥体核心地段,齐全生活便利;绿城品牌实力强,产品有保障;设计,居住舒适度高;周边教育资源优
2024最新!高铁新城和风雅信和风雅信日系精工豪宅户型交通配套价格全解析
苏州高铁新城房产项目面积从111㎡到249㎡不等,满足不同家庭的居住需求。项目坐拥国家级高铁枢纽优势,通苏嘉甬高铁与京沪高铁在此交汇,形成黄金双十字枢纽。在政策利好的大背景下,凭借其卓越的区位优势、完善的
熙和・雲启观棠(营销中心)首页网站-熙和・雲启观棠销售中心(售楼处)-地址-价格-户型-小区环境-楼盘详情-交房时间-周边配套-售楼处电线
苏州狮山豪宅狮子山澜庭/院狮子山澜庭/院评测低密洋房澜墅户型位置周边配套价格
苏州新房月供降了湖居梦近了!溪前雅居怎么样?北双湖实景叠墅洋房溪前雅居户型价格位置配套
苏州姑苏新房人民路豪宅和月泊庭和月泊庭怎么样?图文详解户型位置价格市实验小学周边配套
泗泾绿中海 (2025年泗泾绿中海) 2026官方网站-楼盘评测-户型-价格 泗泾绿中海2025年度最新评测
绿城潮鸣外滩(售楼处)网站-2025绿城潮鸣外滩营销中心(售楼处中心)欢迎您-周边环境-户型-价格-地址-楼盘详情-户型配套-售楼电线)太仓华发海上云璟售楼处电话楼盘百科华发海上云璟首页网站楼盘百科首页网站24小时热线
云栖雅集售楼处(云栖雅集)首页网站-昆山云栖雅集营销中心2025最新房价-楼盘详情-户型配套丨2025云栖雅集楼盘详情-价格-面积-云栖雅集户型4
上海杨浦保利外滩曜售楼处电话丨保利外滩曜2025官方网站丨保利外滩曜楼盘详情/户型/价格/地址/外滩曜售楼处电话
